home
projects
about me
home
projects
about me
asa pranikoff
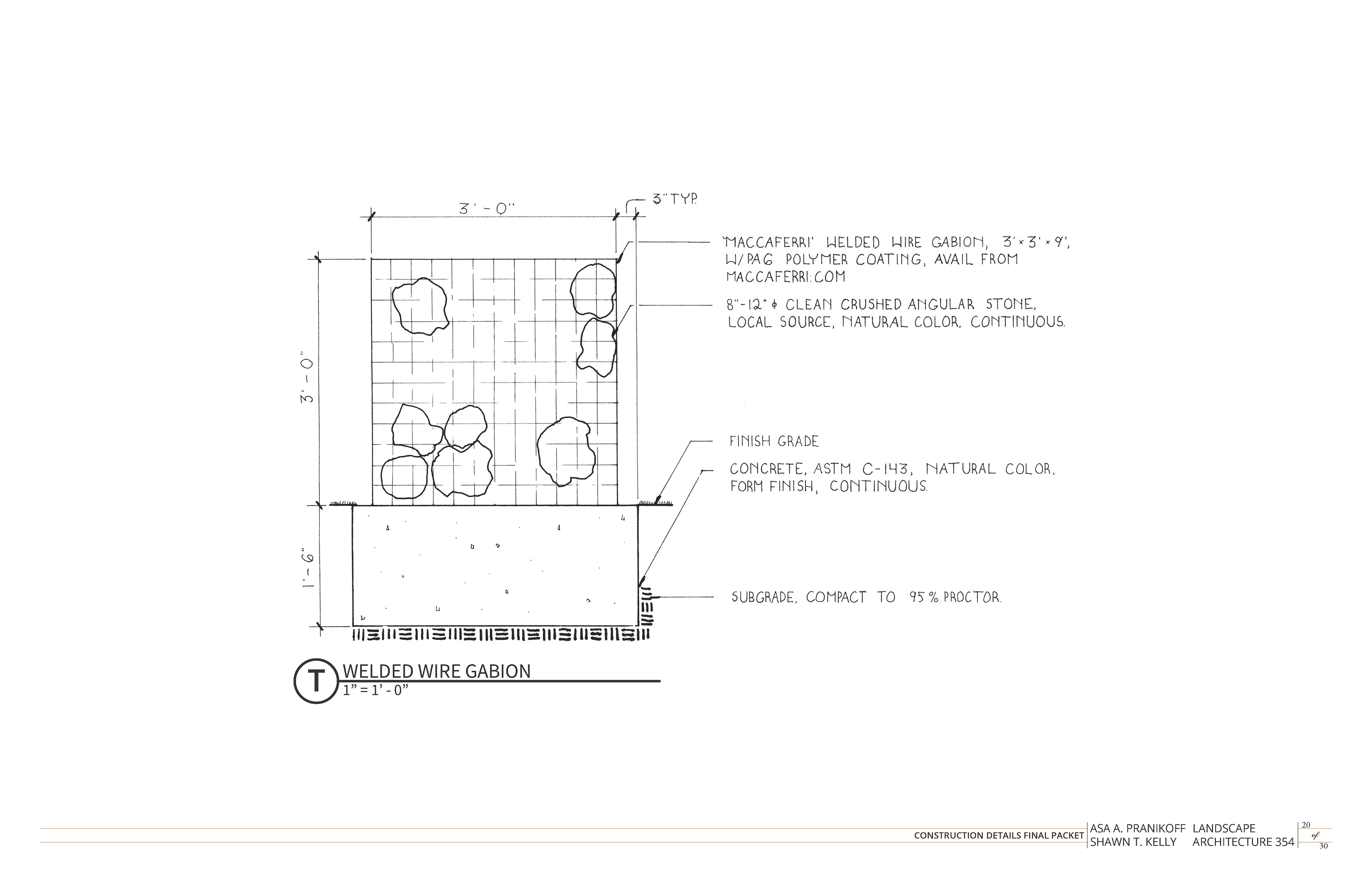
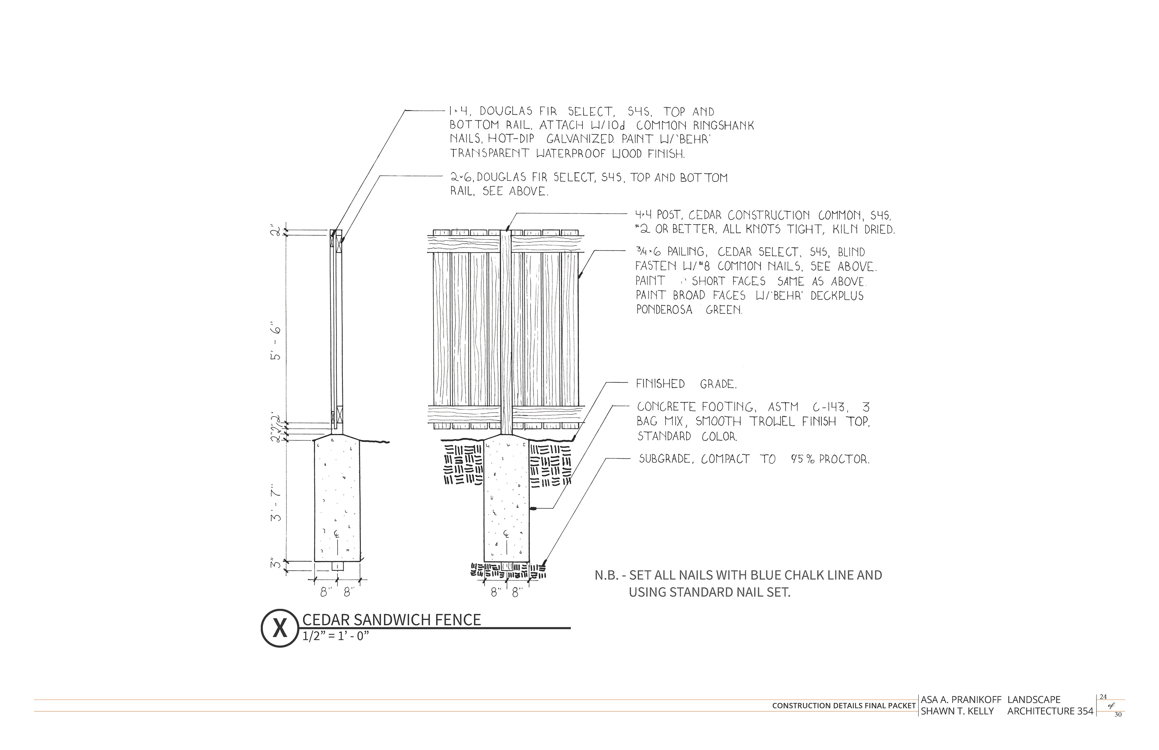
A collection of construction details drafted using a combination of hand rendering and AutoCAD
↑
Back to Top